
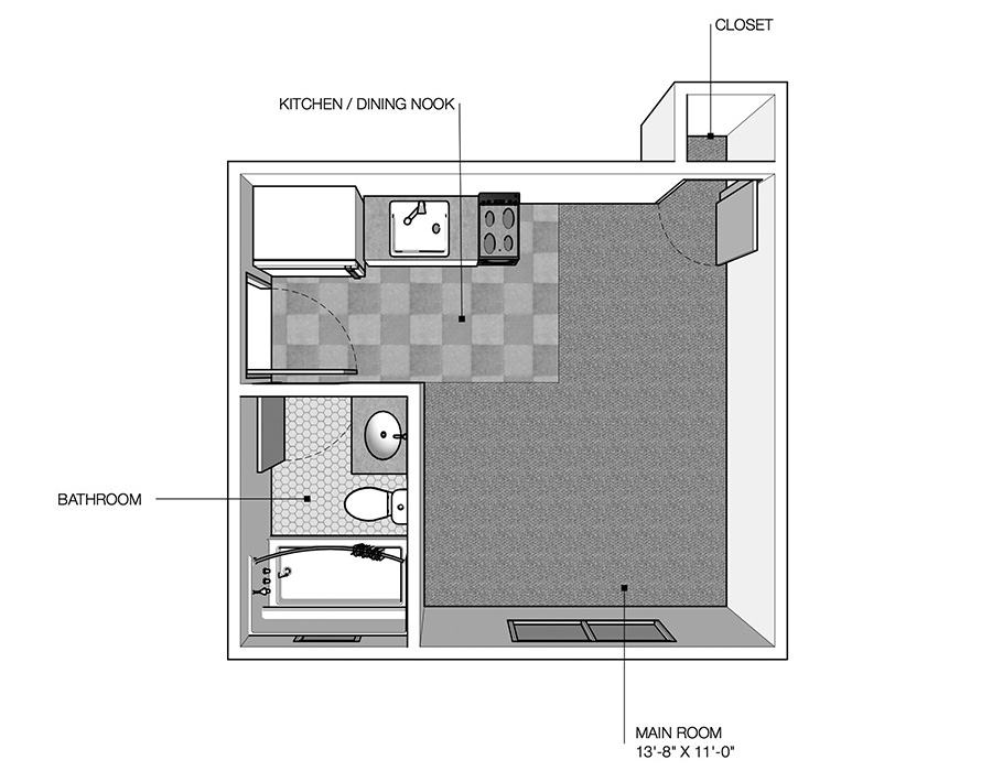
This cozy 230 sq. ft. studio apartment is on the garden level. This studio has a kitchenette and is carpeted throughout the living area. Utilities including gas, electric and water are provided. You can lease this home furnished for an additional fee!
A spacious 390 sq. ft. This one bedroom, one bath is a garden level apartment home with kitchenette. A few feature a contemporary kitchen with island. Coved ceilings and archways compliment the classic style of this home. This apartment home is available with either carpeting throughout or oak hardwood floors. Some in this style feature a direct entrance into the bedroom area.
A 550 sq. ft. one bedroom, one bath apartment home that features an emphasis on the kitchen area. This home features a large eat in kitchen with a beautiful window, to enhance your view while dining. Classic coved ceilings and archways contribute to the beauty of this home. This apartment home is available on both the second and third floors of our buildings. You can choose from carpet or beautiful oak hardwood flooring.
This one bedroom, one bath is 590 sq. ft and features a step saving kitchen. The emphasis in this home is on the living area and features a large living/dining area. With beautiful coved ceilings and archways this home has classic style. This apartment home is available on both the second and third floors of our buildings. This apartment home is also available with carpeting throughout or beautiful oak hardwood floors.
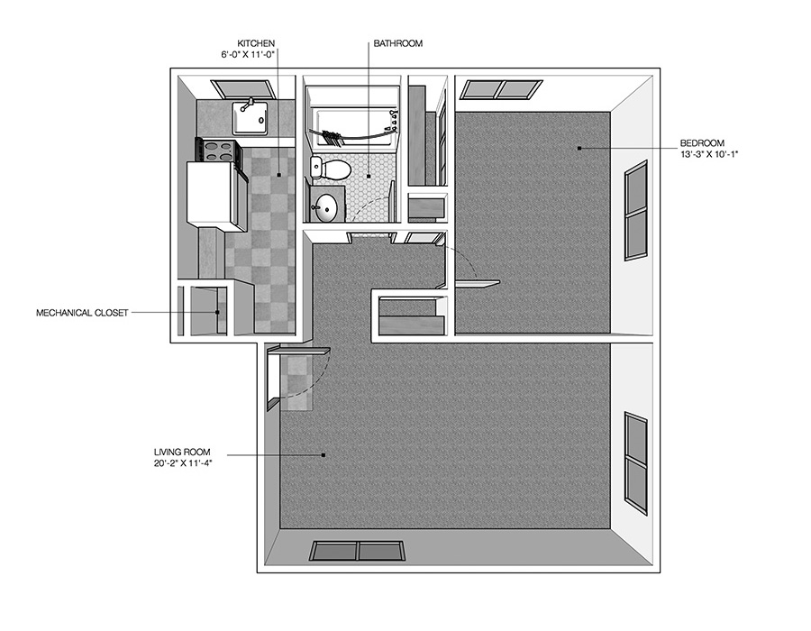
This two bedroom, one bath apartment home is 645 sq. ft and is available on the garden level of our buildings. This home features a step saver kitchen, either classic or contemporary. Beautiful plush carpet or oak hardwood floors are available in this style home.
Our spacious two bedroom, one bath Franklin is 670 sq. ft. With just a few of this style home, it is available on either the second or third floor. This home features an eat-in kitchen. The home is complimented by coved ceilings and archways, and is available with either carpet or oak hardwood floors.